Haus_KJ1
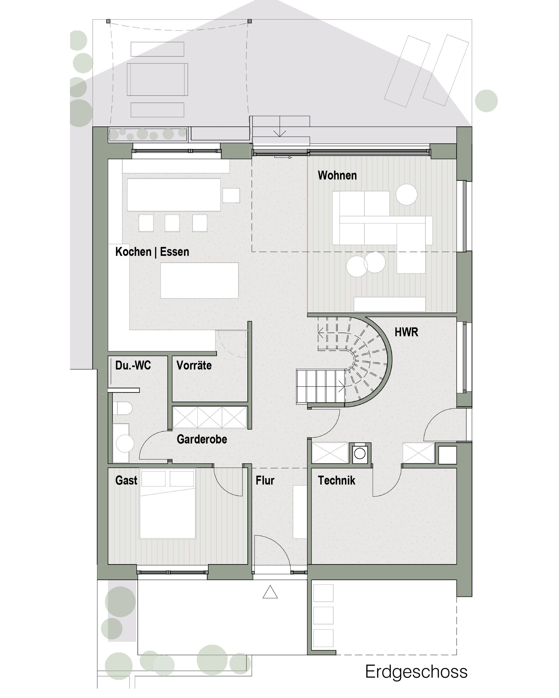
Auf der Bodenplatte einer ehemaligen Werkstatthalle entsteht ein neues Wohnhaus in Holzbauweise. Die großzügig verglaste Nordfassade mit Blick auf Garten und Weinberge, eine runde Teppe, 2 Lufträume mit Galerie und ein großzügiger Elternbereich unter dem Dach sind neben dem Fokus auf nachhaltiges Bauen besondere Merkmale an diesem Projekt.






